"Margins" for an Evolving Lifestyle
KOENJI renovation
A Renovation in Suginami, Tokyo. A Space with "Margins" for a Work-From-Home Family, Blurring the Boundary Between Work and Life to Accommodate Future Change
Principal Use: Residence
Design: AIDAHO Inc.
Construction: First Housing Co., Ltd.
Location: Koenji, Suginami-ku, Tokyo
Total Floor Area: 81.84 m²
Completion: August 2025
Photography: Akira Nakamura / AKIRA NAKAMURA PHOTOGRAPHY
"Margins" for an Evolving Lifestyle
KOENJI renovation
PROJECT STORY
Located in Koenji, Suginami-ku, this project involved the renovation of a private condominium unit. The clients are a couple who primarily work remotely; they envisioned a home so inviting that they would never feel the need to leave. To ensure a stress-free experience for a couple who spends the vast majority of their time indoors, we engaged in in-depth consultations regarding their daily routines. The result is a layout meticulously tailored to fit their lifestyle.
Existing Piping
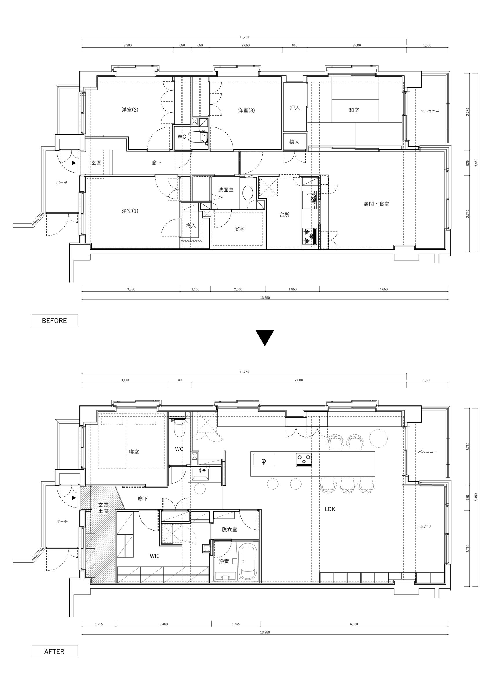
taking into account the fundamental constraints of existing plumbing and ventilation, we positioned the spacious open-plan living, dining, and kitchen area (LDK)—the heart of the home—on the prime south-facing side. To ensure a restful environment, the bedroom is set apart from the lively living area, while utility spaces such as the toilet, bathroom, and walk-in closet are consolidated on the north side. Furthermore, the plan is designed with flexibility in mind; a portion of the spacious LDK can be partitioned off to create a children’s room in the future.
〈Plan〉Before-After
An island kitchen, meticulously designed to reflect the client’s passion for cooking, serves as the centerpiece of the open-plan living area. By eliminating partitions between the living, dining, and kitchen zones, we created a unified space that allows for interaction with family members while cooking. Additionally, a work desk is positioned alongside the cabinetry behind the kitchen. This layout creates a seamless flow, allowing for easy transitions between domestic chores and professional work.
Workspace adjacent to the kitchen
Opposite the kitchen, we designed a wall storage unit to display the family’s collection of art books and board games. We also created an open raised floor area facing a large window to bring in natural light. The space beneath this platform is efficiently utilized as under-floor storage.
<After Renovation> Wall storage and raised floor area
The movable chests nestled at the bottom of the wall storage were produced using digital fabrication. We created the digital cutting data for the parts, and the clients assembled the pre-cut materials themselves as a DIY project. The parts are designed to be easily assembled by fitting the interlocking tabs and slots together. We embraced this structural necessity, choosing a design that treats the exposed joints on the surface as a positive visual accent.
Drawers created using digital fabrication
The “back-of-house” utility areas—including the walk-in closet, changing room, and washroom—were arranged based on the specific sequence of daily movements: undressing, laundry, storing clothes, dressing, grooming, and heading out. We designed a circular circulation path that connects: Hallway → LDK → Changing Room → WIC/Laundry → Hallway/Washroom → Entrance. This layout ensures a smooth and logical flow through the home.
Circulation loop: Hallway → WIC → Changing RoomWashstand placed in the hallway for easy access
The interior color palette is anchored by a light gray base applied to the floors, walls, and ceilings using paint and wallpaper. Against this backdrop, reddish Lauan plywood serves as the visual centerpiece, cladding the furniture and the walls enclosing the WIC and changing room. To maintain a clean aesthetic, the doors to these utility areas feature frameless detailing. This design minimizes the presence of the doors, allowing the Lauan plywood finish to appear continuous and seamless.
Lauan walls enclosing the WIC and changing room
As accent colors, we incorporated the client’s favorite palette—orange, yellow, green, and blue—onto the doors and cabinetry. We deliberately selected a paint that retains visible brushstrokes. This texture prevents the surfaces from looking flat, adding depth and character to the vibrant colors. All painting was executed by the clients themselves as a DIY project.
<During Renovation> The client and architect painting the doors togetherFour colorful doors lining the hallwayKitchen cabinet doors in two colors
The DIY-finished color panels serve a dual purpose: they foster the clients’ deep attachment to their home and introduce a unique aesthetic. By utilizing a hand-brushed finish—a technique often abandoned in modern construction due to efficiency and difficulty—we achieved a texture and presence that gives the room an unparalleled depth.
Regarding the lighting plan, we addressed the client’s request to avoid harsh glare. We installed pinpoint task lighting only where strictly necessary. For the base ambient light, we positioned indirect lighting on top of furniture and along the beams, bathing the entire living area in a soft, gentle glow.
<After Renovation> LDK illuminated by indirect lighting<After Renovation>
The result is a residence designed with the flexibility to accommodate a wide variety of lifestyle scenes. The open layout allows the clients to work while watching over their child, host friends at the kitchen island “bar,” or entertain large groups at the dining table. Furthermore, the plan retains enough spatial margin to be easily partitioned for a future child’s room, ensuring the home evolves with the family.
Information
KOENJI renovation
Principal Use: Residence
Design: AIDAHO Inc.
Construction: First Housing Co., Ltd.
Location: Koenji, Suginami-ku, Tokyo
Total Floor Area: 81.84 m²
Completion: August 2025
Photography: Akira Nakamura / AKIRA NAKAMURA PHOTOGRAPHY